草加市 賃貸店舗・事務所

ストーク草加一番館 1階

お問い合わせ番号:f11175-158300
賃貸店舗・事務所
草加市高砂2
東武伊勢崎線 草加駅 ( 徒歩 5分 )
賃料 66.00万円(税込)
(坪単価:0.77万円)
草加駅徒歩5分・視認性良好な路面区画、各種店舗に最適
・人通りの多い立地で店舗やサービス業に好適。広々約282㎡の大型区画です
管理費 -
保証金
解約引
6ヶ月
-
敷金
礼金
-
1ヶ月
建物/専有
面積
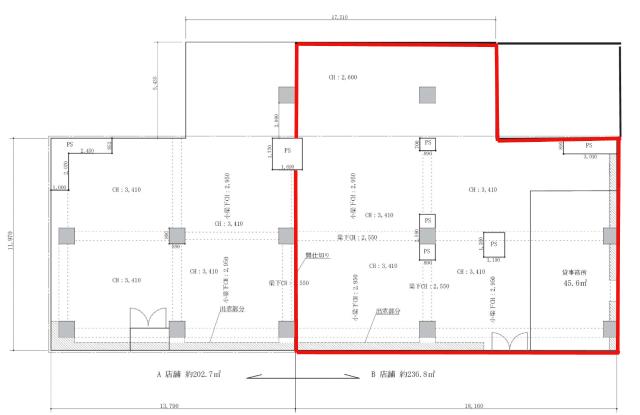
282.40m2
(85.42坪)
土地面積 - 築年月 1981年2月
(昭和56年2月)
駐車場 - 所在階 1階 地上階数
地下階数
2階
-
構造 鉄骨鉄筋コンクリート造(SRC)
現況 空き
入居/引渡 即時 
契約期間 3年
取引 仲介
物件登録日 2026年1月4日
情報更新日 2026年2月20日
■東武伊勢崎線「草加駅」徒歩5分、商業集積エリアの路面区画
■282.40㎡の広々空間、複数区画を一体利用可能
■視認性の高い1階部分で、飲食・物販・サービス等幅広く対応可
■建物はSRC造、安定した構造で長期利用にも安心
■現在空室のため、即入居可能

★新規開業・事業拡大・移転をご検討中の方へ
草加市内をはじめ、越谷・八潮・三郷・春日部など
埼玉東部エリアのテナント探しは
**テナントショップ草加(BRS不動産)**にお任せください。
ご希望条件に合う物件を丁寧にお調べしてご紹介します!
お気軽にお問合せください。

ストーク草加一番館 1階 周辺地図

ストーク草加一番館 1階 のことならお気軽にご相談ください。
テナントショップ草加(㈱BRS不動産)
TEL:048-951-2005
営業時間:10:00-18:00
定休日 :水曜・木曜
メールでのお問い合わせ

お電話の場合は「テナントショップを見ました。物件番号は < f11175-158300 > です」と伝えていただくとスムーズにお応えできます。

  • 借りる
  • テナント・貸店舗を探す
  • オフィス・事務所を探す
  • 倉庫・工場を探す
  • 貸土地・借地を探す
  • 居抜き物件
  • 買う
  • 売買物件を探す
  • 依頼する
  • 新着物件!未公開物件!地元に詳しい!
  • 物件リクエスト
検索する
スペース区切りの複合語句検索はできません

  • スマホで物件検索
  • 実績紹介
  • 物件管理
  • 会社概要・アクセス
  • 株式会社BRS不動産